24G124-3:装配式混凝土建筑设计示例(三)
- 图集编号
- 24G124-3
- 图集名称
- 装配式混凝土建筑设计示例(三)
- 定价
- 105.00 元
- 开本
- 8 开
- 主编单位
- 中国建筑标准设计研究院有限公司
- 广东博意建筑设计院有限公司
内容简介
本图集为为建筑产业现代化国家建筑标准设计专项编制项目。本图集以广东省某项目为蓝本编制,示例装配式混凝土结构住宅标准化设计。指导设计人员系统地了解、掌握装配式住宅建立标准部品部件库的方法、技术策划、设计方法和图面表达。本图集主要编制了部品部件库、技术策划、建筑方案示例、建筑施工图示例、结构施工图示例和构件详图示例六大部分内容。
部品部件库提出了基于部品部件的装配式混凝土结构住宅设计理论及方法,形成典型地区常用标准部品部件库,建立地区通用化标准部品部件体系,从而改善目前装配式市场中订单式生产导致构件成本居高不下的状况,推广标准化构件,为国内装配式混凝土住宅的标准化设计提供理论和技术参考。
技术策划从设计条件、技术工艺、标准化设计、协调设计、注意事项等多方面提出了前置策划工作的技术管理要点,指导装配式项目各参建单位进行前置设计、协同工作和精细化管控。
建筑方案示例展示采用企业标准构件库完成装配式混凝土结构住宅方案的全过程。方案设计充分发挥标准构件库设计优势,通过控制功能空间尺寸,提高标准构件应用量,形成具有实际指导意义的装配式混凝土结构住宅的建筑方案设计。
建筑施工图示例重点从装配式建筑设计专篇、平立剖面图、套型平面详图、设备点位综合详图、打胶示意图、大样图等方面,示例施工图设计内容。
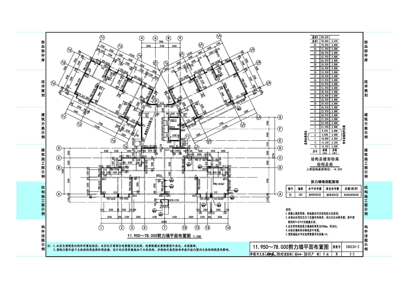
结构施工图示例重点从装配式结构设计专篇、墙柱平面及配筋图、板配筋平面图、预制构件连接节点详图等方面,示例施工图设计内容。
构件详图示例基于设计单位视角,重点对典型预制构件尺寸及配筋、预留预埋、模板固定预埋及防漏浆等提出设计要求,构件生产单位(或深化设计单位)后续应考虑生产工艺、工装、脱模运输和安装等因素,完成构件加工详图设计。
示例介绍了企业标准部品部件库的设计方法;编制了典型的装配式技术选型策划;形成了基于标准构件库的装配式住宅设计方法;充分体现采用装配式混凝土结构建造的住宅的设计思路及标准化落地;绘制了预制构件详图设计示例,有助于提高设计与生产的协同。对于装配式混凝土住宅在策划、设计、生产、施工的提效降本有着积极的作用,有利于促进实现区域性的技术和构件标准化,建立部品标准化技术体系,节约材料用量、降低生产过程中的次生浪费与污染,具有良好的经济、社会和环境效益。

