06J908-1:公共建筑节能构造-严寒和寒冷地区
- 图集编号
- 06J908-1
- 图集名称
- 公共建筑节能构造-严寒和寒冷地区
- 定价
- 45.00 元
- 开本
- 16 开
- 主编单位
- 北京市建筑设计研究院
内容简介
本图集适用于新建、改建、扩建的严寒、寒冷地区公共建筑。其他建筑可参照选用。主要内容根据《公共建筑节能设计标准》GB50189-2005要求,编制了适合严寒及寒冷地区的公共建筑设计中常用的保温材料热工性能指标表;常用节能复合墙体的构造做法选用表(带热工性能指标值);不同的楼面、地面和内隔墙保温构造做法选用表(带热工性能指标值);常用复合墙体的建筑节能构造节点(如热桥部位、门窗立口细部构造等)。图集提供的表格和构造节点合理、实用,供设计人员在进行公共建筑节能设计时选用。
目录
| 目录 | 1 |
|---|---|
| 说明 | 4 |
| 节能标准、保温材料性能、热工性能指标选用说明 | |
| 公共建筑节能设计标准传热系数限值 | 1-1 |
| 保温材料主要性能数据表 | 1-2 |
| 围护结构热工性能指标选用说明 | 1-3 |
| 墙体热工性能指标 | |
| 蒸压加气混凝土砌块(板)外墙选用表 | 2-1 |
| 蒸压加气混凝土砌块复合外墙选用表 | 2-2 |
| 蒸压加气混凝土砌块(板)复合外墙选用表 | 2-4 |
| 混凝土空心砌块复合外墙选用表 | 2-6 |
| KP1多孔砖复合外墙选用表 | 2-7 |
| 轻集料混凝土空心砌块复合外墙选用表 | 2-8 |
| 钢筋混凝土复合外墙选用表 | 2-9 |
| 轻钢龙骨纸面石膏板(或纤维水泥加压版)复合保温外墙选用表 | 2-10 |
| 节能装饰板保温外墙选用表 | 2-12 |
| 保温屋面、楼面、地面热工性能指标 | |
| 保温屋面选用表 | 2-13 |
| 保温楼面选用表 | 2-18 |
| 保温地面选用表 | 2-19 |
| 保温内隔墙热工性能指标 | |
| 保温内墙选用表 | 2-20 |
| 其他部位热工性能指标 | |
| 架空或外挑楼板及采暖地下室外墙(与土壤接触的墙)选用表 | 2-21 |
| 蒸压加气混凝土外墙体系 | |
| 蒸压加气混凝土制品应用说明 | 3-1 |
| 蒸压加气混凝土砌块外墙 | 3-2 |
| 蒸压加气混凝土砌块外墙节点详图 | 3-3 |
| 蒸压加气混凝土砌块外墙外保温 | 3-4 |
| 蒸压加气混凝土砌块外墙外保温节点详图 | 3-5 |
| 蒸压加气混凝土砌块外墙内保温 | 3-6 |
| 蒸压加气混凝土砌块外墙内保温节点详图 | 3-7 |
| 蒸压加气混凝土外墙板 | 3-8 |
| 蒸压加气混凝土外墙板节点详图 | 3-9 |
| 蒸压加气混凝土外墙板外保温 | 3-10 |
| 蒸压加气混凝土外墙板外保温节点详图 | 3-11 |
| 蒸压加气混凝土外墙板内保温 | 3-12 |
| 蒸压加气混凝土外墙板内保温节点详图 | 3-13 |
| 蒸压加气混凝土外墙板外挂石材幕墙 | 3-14 |
| 蒸压加气混凝土外墙板外挂石材幕墙节点详图 | 3-15 |
| 纤维水泥加压板装饰幕墙体系 | |
| 纤维水泥加压板装饰幕墙体系(明螺钉连接做法) | 4-1 |
| 纤维水泥加压板装饰幕墙节点详图(明螺钉连接做法) | 4-2 |
| 轻质墙体压力水泥装饰板幕墙零配件详图 | 4-4 |
| 纤维水泥加压板装饰幕墙节点详图(压缝条连接做法) | 4-5 |
| 纤维水泥加压板装饰幕墙构配件及板材规格和物理力学性能 | 4-8 |
| 石材装饰幕墙体系 | |
| 石材幕墙轻质墙体(销钉连接做法) | 5-1 |
| 石材幕墙轻质墙体节点(销钉连接做法) | 5-2 |
| 石材幕墙轻钢龙骨纸面石膏板(或纤维水泥加压板)墙体 | 5-4 |
| 石材幕墙轻钢龙骨纸面石膏板(或纤维水泥加压板)墙体节点 | 5-5 |
| 背槽式石材(瓷板)幕墙系统应用说明 | 5-7 |
| 背槽式L型石材幕墙平、立面详图 | 5-8 |
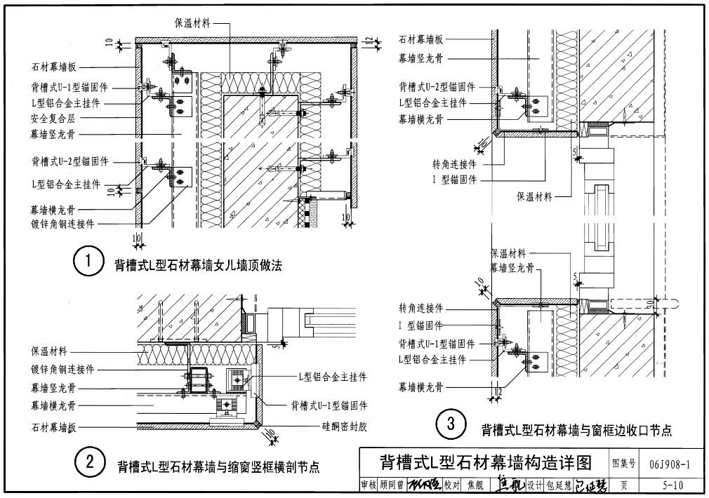
| 背槽式L型石材幕墙构造详图 | 5-9 |
| 背槽式C型石材幕墙平、立面详图 | 5-12 |
| 背槽式C型石材幕墙构造详图 | 5-13 |
| 金属装饰幕墙体系 | |
| 金属保温装饰板应用说明 | 6-1 |
| 金属保温装饰板外墙立剖面图 | 6-2 |
| 金属保温装饰板与墙体构造详图 | 6-3 |
| 金属保温装饰板阳角及勒脚构造详图 | 6-4 |
| 金属保温装饰板女儿墙构造详图 | 6-5 |
| 金属保温装饰板窗口部位构造详图 | 6-6 |
| 金属保温装饰板板型、构造和配件详图 | 6-8 |
| 聚氨酯保温铝板幕墙应用说明 | 6-9 |
| 聚氨酯保温铝板外墙详图(钢筋混凝土框架) | 6-10 |
| 聚氨酯保温铝板外墙详图(钢筋混凝土剪力墙) | 6-11 |
| 聚氨酯保温铝板外墙详图(钢结构) | 6-13 |
| 保温铝板幕墙断桥开启窗、固定窗节点图 | 6-14 |
| 保温铝板幕墙与幕墙开启窗、固定窗节点图 | 6-15 |
| 保温铝板幕墙开启窗、固定窗节点详图 | 6-16 |
| 外墙外保温复合装饰板幕墙体系 | |
| 外墙外保温复合装饰板系统应用说明 | 7-1 |
| 外墙外保温复合装饰板平、立面索引图 | 7-2 |
| 外墙外保温复合装饰板粘挂结合节点详图 | 7-3 |
| 外墙外保温复合装饰板干挂节点详图 | 7-5 |
| 外墙外保温复合装饰板点锚节点详图 | 7-9 |
| 外墙外保温复合装饰板详图 | 7-12 |
| 女儿墙和勒脚 | |
| 女儿墙和勒脚部位详图(适用于石材幕墙轻质墙体) | 8-1 |
| 女儿墙和勒脚部位详图(适用于蒸压加气混凝土墙体挂石材幕墙) | 8-2 |
| 保温装饰砌块构造 | |
| 保温装饰混凝土小型空心砌块(墙裙)应用说明 | 9-1 |
| 保温装饰混凝土小型空心砌块立面 | 9-2 |
| 保温装饰混凝土小型空心砌块详图 | 9-3 |
| 保温楼面地面构造 | |
| 保温地面构造做法 | 10-1 |
| 保温楼面构造做法 | 10-2 |
| 雨罩平台构造 | |
| 雨罩构造详图 | 11-1 |
| 平台构造详图 | 11-2 |
| 附录 | |
| 附录1 保温材料的规格及物理性能指标 | |
| 玻璃棉的规格及物理性能指标 | 12-1 |
| 岩棉的规格及物理性能指标 | 12-3 |
| 绝热用模塑聚苯乙烯泡沫塑料的规格及物理性能 | 12-4 |
| 硬质聚氨酯泡沫塑料的规格及物理性能指标 | 12-5 |
| 绝热用挤塑聚苯乙烯泡沫塑料的规格及物理性能 | 12-6 |
| 蒸压加气混凝土砌块的规格及物理性能指标 | 12-7 |
| 全水基软发泡聚氨酯的规格及物理性能指标 | 12-9 |
| 附录2 配套材料的技术性能指标 | |
| 模塑聚苯板配套材料性能指标 | 12-10 |
| 挤塑聚苯板配套材料性能指标 | 12-11 |
| 防风防水透汽膜及隔汽膜技术性能指标 | 12-12 |
| 防风防水透汽膜及隔汽膜的应用实例 | 12-13 |
| 相关技术资料 |
网友推荐
-
网友【LN20080301】点评:本图集是严寒及寒冷地区的公共建筑设计中常用的保温材料热工性能指标表以及墙体的建筑节能构造节点(如热桥部位、门窗立口细部构造等)的汇总。方便实用,使设计人员在进行公共建筑节能设计时直观选择,使设计应符合节能设计的要求。是一本很好的资料。
-
网友【vtetjh】点评:节能
-
网友【zhtyjq】点评:节能建筑是今后的热门话题,建筑师必须要运用起来!
-
网友【hajianyu】点评:这个非常好。 其实无论对于设计还是施工,监理来说,对于节能节点等的做法都还处在一个接受与学习的阶段,有很多东西需要有依据。。 该图集能补此空白
-
网友【hitzjq2010】点评:建筑节能是目前国家降低总能耗的主要关注方向,各地区都制定自己的节能地方标准,要求新建建筑必须满足节能规范,同时也要求甲方提供节能计算书,作为审查设计依据。因此建筑设计人员必须了解这一规范,在填充墙、围护墙、玻璃幕墙的选择上尽量减少能耗,满足节能标准。
-
网友【日日月月年年】点评:关于建筑节能必不可少的书籍之一
-
网友【lovey】点评:本图集根据《公共建筑节能设计标准》GB50189-2005要求,编制了适合严寒及寒冷地区的公共建筑设计中常用的保温材料热工性能指标表;常用节能复合墙体的构造做法选用表(带热工性能指标值);不同的楼面、地面和内隔墙保温构造做法选用表(带热工性能指标值);常用复合墙体的建筑节能构造节点(如热桥部位、门窗立口细部构造等)。图集提供的表格和构造节点合理、实用,供设计人员在进行公共建筑节能设计时选用。 是一本很好的资料,强烈推荐。
-
网友【wspwwc】点评:建筑节能是目前国家降低总能耗的主要关注方向,各地区都制定自己的节能地方标准,要求新建建筑必须满足节能规范,同时也要求甲方提供节能计算书,作为审查设计依据。因此建筑设计人员必须了解这一规范,在填充墙、围护墙、玻璃幕墙的选择上尽量减少能耗,满足节能标准。本图集是严寒及寒冷地区的公共建筑设计中常用的保温材料热工性能指标表以及墙体的建筑节能构造节点(如热桥部位、门窗立口细部构造等)的汇总。方便实用,使设计人员在进行公共建筑节能设计时直观选择,使设计应符合节能设计的要求。是一本很好的资料。
-
网友【cobra2010】点评:本图集根据《公共建筑节能设计标准》GB50189-2005要求,编制了适合严寒及寒冷地区的公共建筑设计中常用的保温材料热工性能指标表;常用节能复合墙体的构造做法选用表(带热工性能指标值);不同的楼面、地面和内隔墙保温构造做法选用表(带热工性能指标值);常用复合墙体的建筑节能构造节点(如热桥部位、门窗立口细部构造等)。图集提供的表格和构造节点合理、实用,供设计人员在进行公共建筑节能设计时选用。

